Top.Mail.Ru

Наша компания может выполнять строительство совершенно без пред оплаты. 

Получить консультацию

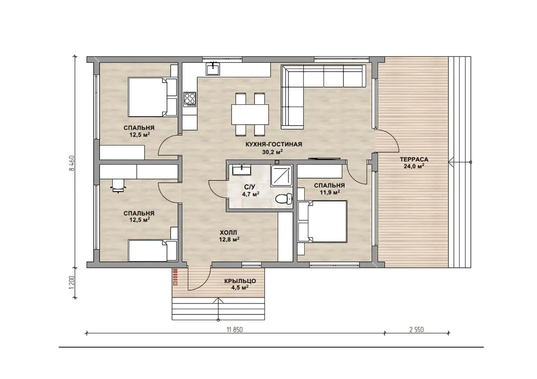
БАРНХАУС 115

Полностью готовый домокомплект заводского производства.

Доставка и сборка включены в стоимость

  • Обвязочный брус - Пакет досок 135х190мм (3 доски 45х190мм). Камерной сушки, строганный. Антисептированы
  • Лаги пола – доска 45х190мм. Камерной сушки, строганный
  • Несущий каркас – доска 45х140мм. Камерной сушки, строганный
  • Утепление, ветрозащита, пароизоляция, металлическая сетка от грызунов

от 2 439 000 ₽

БАРНХАУС 115 премиум

Полностью готовый дом заводского производства.

Доставка и сборка включены в стоимость

  • Настил кровли - Проф. лист 0,45мм
  • Отделка фасада – имитация бруса / планкен, сорт АВ
  • Отделка карнизов и потолка террасы (крыльца) - имитация бруса / планкен, сорт АВ
  • Наружная покраска дома – финские краски Teknomix, бывший Teknos в 2 слоя на станке
  • Окна - 70 профиль, 2х камерный стеклопакет
  • Утепленная входная дверь с терморазрывом
  • Терраса и крыльцо - Настил пола – деревянная террасная доска 24х112мм с покраской Teknos 2 слоя

от 4 523 000 ₽

Наша компания может выполнять строительство совершенно без пред оплаты. 

Получить консультацию

ипотека

Ипотека на строительство — это не просто способ получить деньги под дом.

Это ваш шанс создать жильё, которое идеально подходит именно вам: по проекту, с нужными комнатами, с той планировкой, которую вы мечтали, и даже с бассейном или тёплым гаражом — всё, что ваша душа пожелает.

Ипотека и Эскроу счета
Как получить скидку 10 %
Cookie-файлы
Настройка cookie-файлов
Детальная информация о целях обработки данных и поставщиках, которые мы используем на наших сайтах
Аналитические Cookie-файлы Отключить все
Технические Cookie-файлы
Другие Cookie-файлы
Мы используем файлы Cookie для улучшения работы, персонализации и повышения удобства пользования нашим сайтом. Продолжая посещать сайт, вы соглашаетесь на использование нами файлов Cookie. Подробнее о нашей политике в отношении Cookie.
Понятно Подробнее
Cookies